logo casetraprivati
Boscoreale > Case - Appartamenti in Vendita > 12 locali

12 locali in vendita a Boscoreale

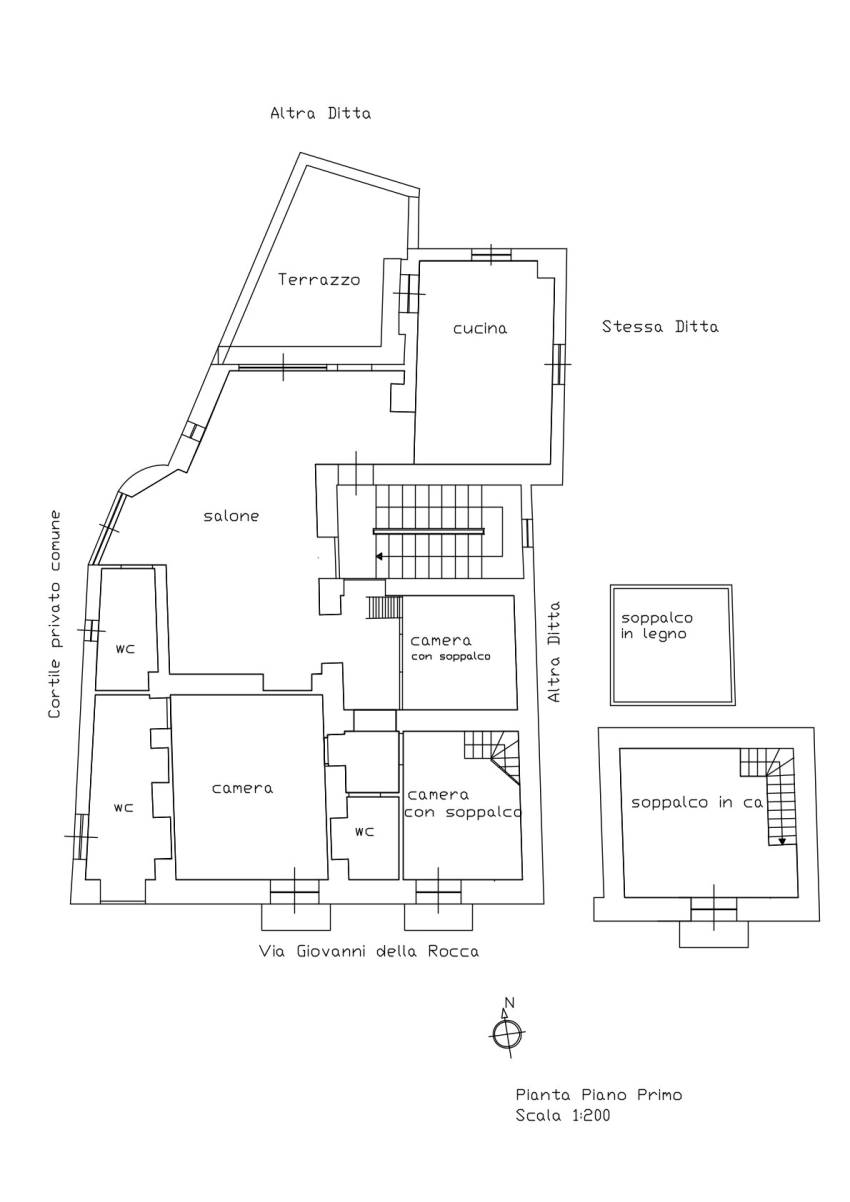
Via Giovanni della Rocca 23, Boscoreale
PRIVATO VENDE
380.000 €
OPZIONABILE
ANNUNCIO TOP
superficie 330 m²
locali 12 locali

Appartamento di 220 m² in via Giovanni della Rocca 23, a Boscoreale, disponibile per la vendita a prezzo su richiesta. Questa proprietà semi-indipendente, situata al primo piano, è recentemente ristrutturata e offre ampi spazi, con un enorme living, uno studio, tre comode camere da letto e tre moderni bagni, perfetta per famiglie o per chi cerca spazio ed eleganza. La proprietà vanta un accesso privato con androne esclusivo e include una pertinenza di 40 mq con bagno, un deposito di 40 mq, un’area esterna attrezzata con cucina e 4 posti auto. Inoltre, è presente un giardino curato e una cantina di 58 mq, ideali per sfruttare al meglio ogni angolo della casa. Non da meno, i terrazzi al secondo e terzo piano, entrambi di esclusiva proprietà, offrono spazio per godere di momenti di relax all'aria aperta. È dotata di un impianto fotovoltaico di 3KW, garantendo una maggiore efficienza energetica. La proprietà è priva di arredi ma offre infinite possibilità per personalizzazione. Situata in una zona tranquilla ma comunque vicina a tutti i servizi necessari, questa casa è un'opzione eccellente per chi cerca una residenza spaziosa e moderna. Non perdere l'opportunità di visitare questo immobile. Contattami per organizzare una visita o per maggiori informazioni.Prezzo leggermente trattabile

Prezzo

Prezzo 380.000 €

Caratteristiche

Contratto Vendita
Tipologia Appartamento
Superficie 330 m²
Locali 12
Bagni 5
Aria condizionata
Balcone
Giardino
Terrazzo
Cantina
Posto auto
Solaio

Efficienza Energetica

Classe energetica In fase di richiesta
Stato Ristrutturato
Anno di costruzione 1995
Riscaldamento Autonomo
Esposizione Triesposto
OPZIONABILE
PRIVATO VENDE
380.000 €
superficie 330 m²
locali 12 locali
annuncio top ANNUNCIO TOP

Questo Appartamento si trova in Via Giovanni della Rocca 23 a Boscoreale

Via Giovanni della Rocca, 23, 80041 Boscoreale NA, Italia

Calcola il tuo mutuo

%
0 rate da 0 €
al mese
ANTICIPO 0
MUTUO 0

Case tra privati al tuo servizio

Scopri i servizi esclusivi che Case tra privati puó offrirti per questo immobile.

Opziona un immobile
Questo immobile é OPZIONABILE!!
Blocca la vendita per 7 giorni e prenditi un pó di tempo per pensarci su senza rischiare di perderlo!
Opziona ora
Parla con un nostro esperto
Hai dei dubbi? Il nostro staff é formato da TECNICI e LEGALI di esperienza. Potremo risolvere ogni tuo dubbio ed aiutarti in tutte le fasi di acquisto.
Contatta un esperto
Verifica la proposta d'acquisto
Vuoi stilare una proposta d'acquisto senza errori? Affidati ad un consulente d'esperienza.
Chiedi al professionista
Progettiamo la tua casa
Ti piace quello che hai visto ma vorresti che un professionista ti aiutasse nel progetto della tua "casa dei sogni"?
Chiedi all'architetto